Обяви За нас Контакти
Продава 4-СТАЕН
град Варна, Левски 1
244 100 €
477 418.10 лв.

(1 627 €, 3 182.14 лв./m2)
Цената е с включено ДДС
Коригирана в 15:51 на 3 февруари, 2026 год.
Обявата е посетена 623 пъти.
Площ:
150 m2
Етаж:
8-ми от 10
Строителство:
Тухла, Ще бъде въведен в експлоатация 2027 г.

Описание на имота:


НОВА СГРАДА С МОДЕРНА ВИЗИЯ !!! РАЗСРОЧЕНО ПЛАЩАНЕ !!! ИЗБОР НА АПАРТАМЕНТИ И ЕТАЖИ !!! ОТЛИЧНА ЛОКАЦИЯ !!! ВЪЗМОЖНОСТ ЗА ПАРКОМЯСТО !!!

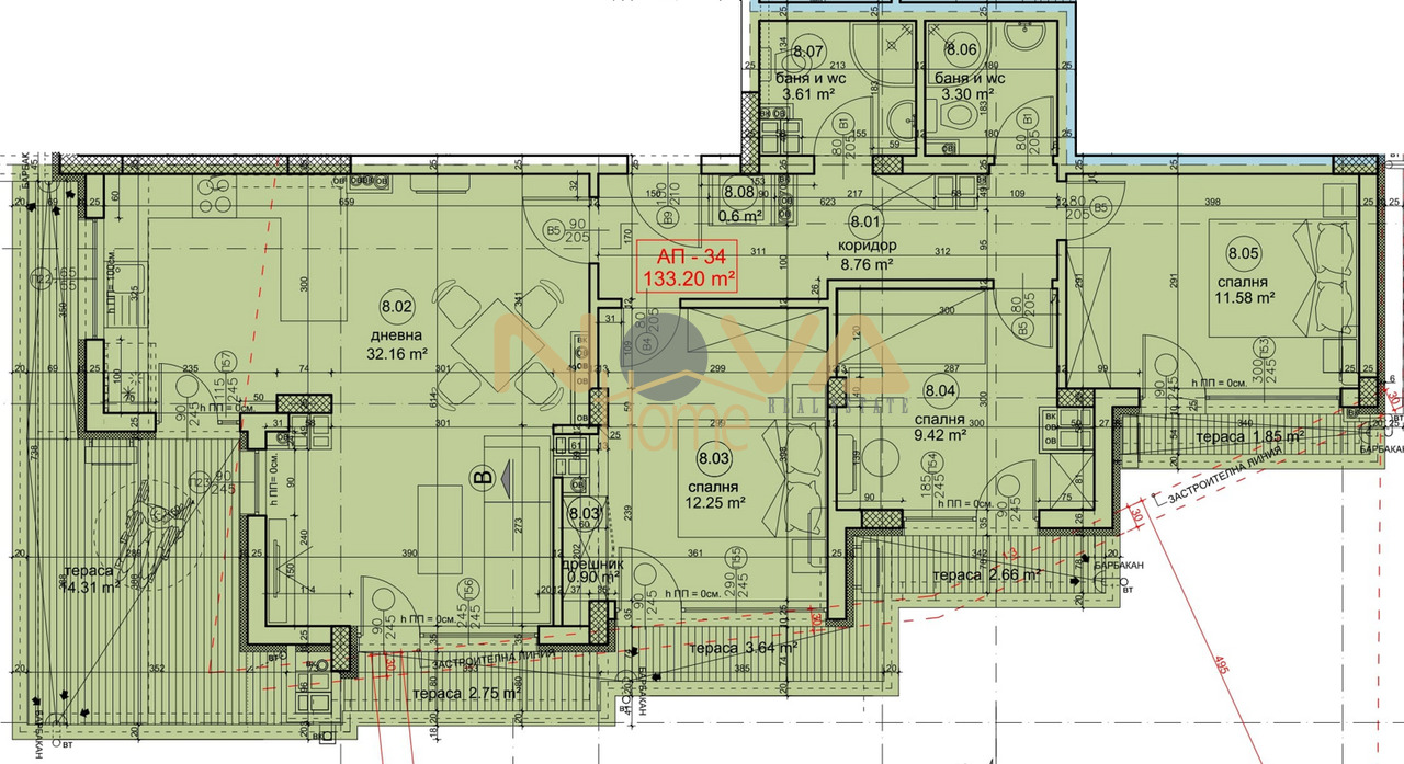
Нова Хоум Ви предлага за продажба четиристаен апартамент с площ от 150 кв.м. разположен в новострояща се луксозна сграда в квартал Левски един от най-предпочитаните и спокойни райони за живеене в гр. Варна.

Жилището се състои от входно антре 8,8 кв.м., просторен дневен тракт с кухненски кът - 32 кв.м. с излаз на тераса 14,3 кв.м., спалня 12,2 кв.м. с излаз на тераса 3 кв.м., втора спалня 11,6 кв.м. с излаз на тераса, трета спалня 9,4 кв.м. с излаз на тераса, баня с тоалетна 3,6 кв.м., втора баня с тоалетна 3,3 кв.м., и перално помещение.

Апартаментът ще бъде завършен по БДС с монтирана входна врата, изградени ВиК и ел.инсталации, отлично завършени общи части.
Към имота има възможност за закупуване на паркомясто.

Локацията на сградата е изключително удобна в непосредствена близост до главни пътни артерии, автобусни спирки, супермаркети, детска градина, училище, болница, което прави имота отличен избор както за постоянно живеене, така и за инвестиция с цел отдаване под наем.

Нова Хоум съдейства на своите клиенти до нотариалното изповядване на сделката, за отпускане на кредит с преференциални условия към всички водещи банки на пазара, както и за ремонтни и довършителни дейности /завършване до ключ/ на преференциални цени.
За повече информация, коментари и огледи: Живко Желязков 0894 34 72 52 (телефон от 8:30 до 21:30), (viber и whatsapp +359894 34 72 52 денонощно).
За да разгледате още актуални оферти в гр.Варна, можете да посетите сайта на агенцията - www.novahome.bg
Особености
Тухла
Асансьор
С паркинг
Контрол на достъпа
Саниран
Възможност за дан. кредит
За контакт:
0894347252
Брокер:
Живко Желязков
+359894347252
Офис: гр. Варна, ул. 'Топола' 26
Още оферти от брокера: Продава | Дава под наем | Купува | Наема
Агенция:
НОВА ХОУМ
0898508787
НОВА ХОУМ logo
Медал за прослужено време
В imot.bg от 2015 г.
novahome.imot.bg
Адрес:
област Варна, гр. Варна, гр. Варна, ул. 'Топола' 26
http://www.novahome.bg
ИЗПРАТИ ЗАПИТВАНЕ
ИЗПРАТИ ЗАПИТВАНЕТО

Продава 4-СТАЕН
град Варна, Левски 1
Обява: 1d174885312086349

244 100 €
477 418.10 лв.
(1 627 €, 3 182.14 лв./m2)

Цената е с включено ДДС
ЗАПАЗИ ОБЯВАТА

Местоположение: град Варна, Левски 1

Допълнителни данни за имотите в района и сравнение с други райони

Покажи

Период

и 2 месеца

* Средните цени са определени чрез медианна стойност